OPDRACHTGEVER: Nijhuis
CONTACTPERSOON: John van de Zand
JAAR: 2017 – 2020
Apeldoorn - Julianakwartier
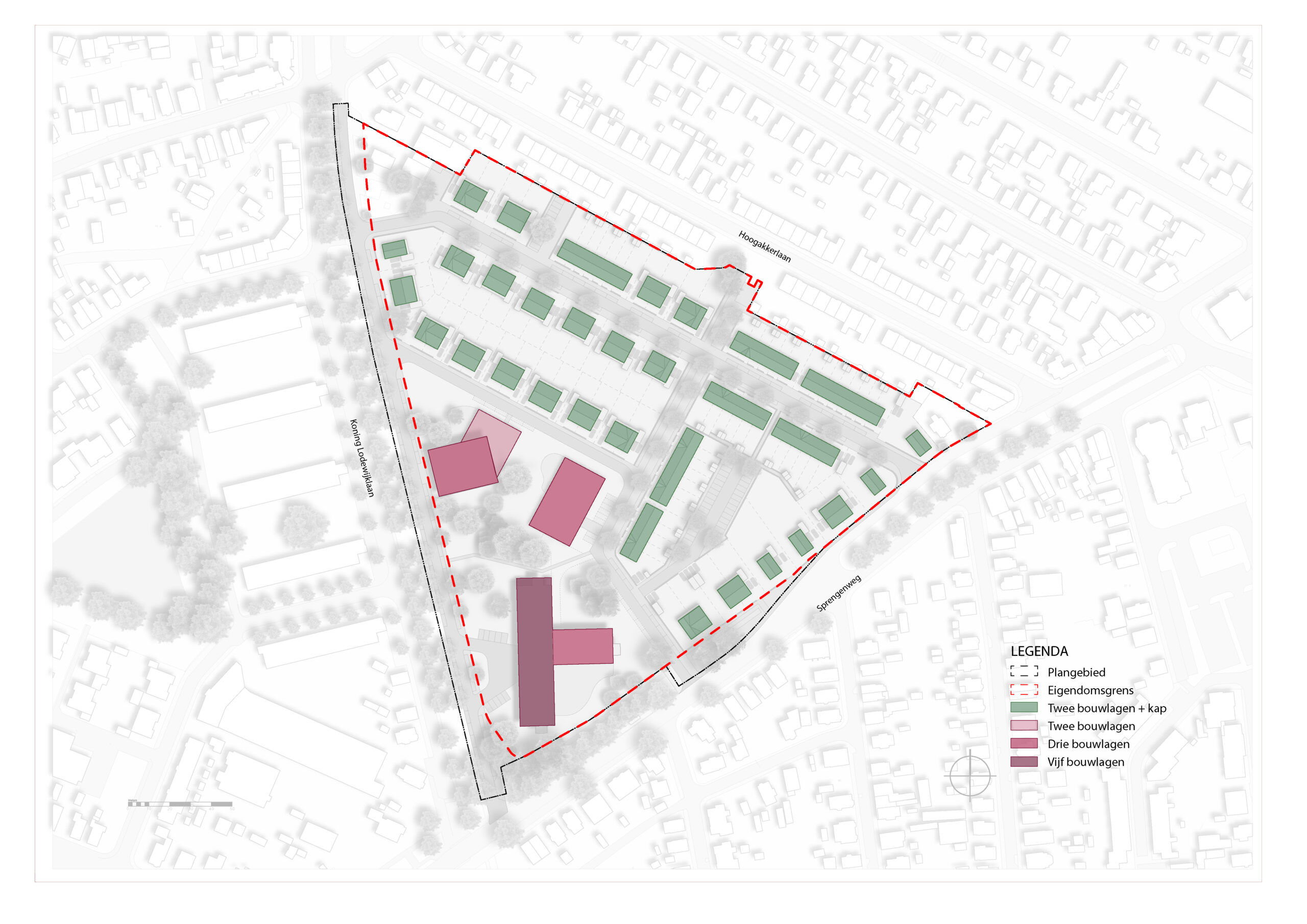
Met de sloop van het voormalige Julianaziekenhuis is een prachtige groene locatie vrijgekomen tegen het centrum van Apeldoorn. Buro SRO heeft hiervoor het stedenbouwkundig plan opgesteld. Daarbij is de ‘groene’ waarde van de locatie ingezet om een bijzonder woon- en zorgmilieu te creëren. Om ervoor te zorgen dat het gebied een samenhangend geheel krijgt en blijft is een beeldkwaliteitsplan opgesteld waarin de aanwezige kwaliteiten van de locatie en de omgeving de basis hebben gevormd voor de architectuur en de inrichting van de buitenruimte.
Naast de advisering op het gebied van stedenbouw, landschap en de inrichting van de buitenruimte heeft Buro SRO tevens de opdrachtgever geadviseerd met betrekking tot de planologische procedure en de toetsing van deze producten, die door de gemeente zijn opgesteld.










